flats for sale in kundrathur flats for sale in kundrathur

Location

Kundrathur, Chennai

Configuration

723, 833, 906 sq.ft

Price

42 Lakhs

residential apartment

Residential Apartment

cmda project

CMDA Approved

ready to move

Under Construction

3 units left

Only 7 Units Left

Welcome to Thamina Enclave

Premium Apartments in Kundrathur

Welcome to Thamina Enclave, a thoughtfully planned residential community offering 7 exclusive 2BHK apartments near Kundrathur Bus Station, crafted for comfort, convenience, and contemporary living.

Designed to deliver a balance of style and practicality, each home offers smart space planning, natural ventilation, and a premium living experience for modern families.

Situated in a prime residential pocket of Kundrathur, the project enjoys exceptional connectivity to public transport, schools, shopping, and everyday conveniences — making it an ideal choice for families seeking a peaceful yet well-connected lifestyle.

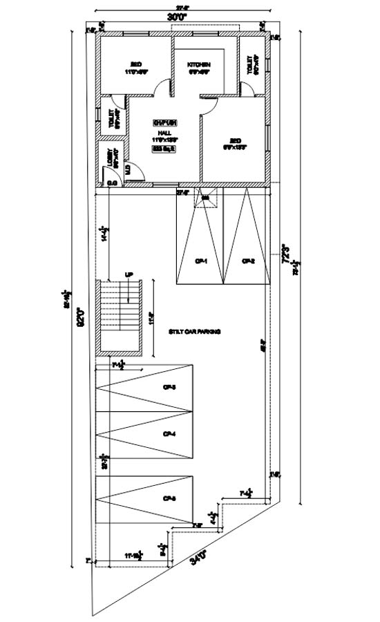
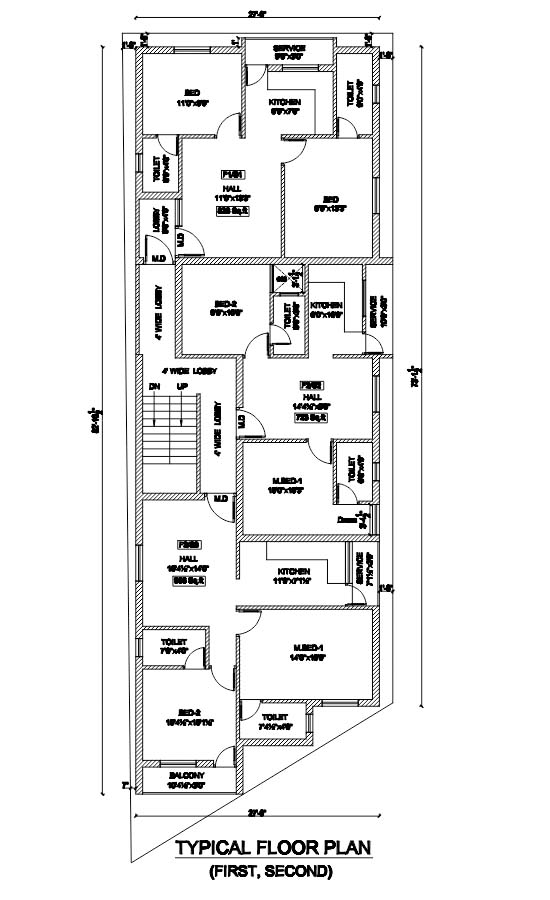
Floor Plans

  • Floor Plan 1

  • Floor Plan 2

falah car parking
falah key plan

Amenities

Vastu Compliant

Covered Parking

CCTV Camera

Connectivity & Social Infrastructure

Location Map

Thansiya Foundations

Trusted customer feedback, thoughtfully gathered from

Residential Flats

4.6

I'm happy with Thansiya Foundations the service was awesome, i would prefer to others. Dream of buying plots go with The Thanisiya Foundations. Best in quality and price

Residential Flats

4.5

Compared with Other properties in chennai, your administration staff and sales department were brilliant. Excellent service at Thansiya Foundations

Residential Flats

4.7

I bought a Tamina Avenue villa in Thansiya Foundations at mangadu from this organization. Good service provided by Thansiya Foundations.

FAQs

Yes, Thamina Enclave offers CMDA approved flats in Kundrathur with clear documentation and easy bank loan assistance, making it a secure choice for homebuyers.

Thamina Enclave offers affordable 2BHK apartments near Kundrathur Bus Station, providing excellent value for buyers seeking budget-friendly homes in a prime location.

The project includes limited 2BHK flats in Kundrathur, designed for privacy and comfort. Bookings are progressing, and interested buyers are encouraged to enquire early.

Thamina Enclave offers well-planned 2BHK flats in Kundrathur with functional layouts optimized for comfort, ventilation, and modern living.

Yes, Thamina Enclave is an attractive option for buyers and investors looking for 2BHK apartments in Kundrathur with strong rental potential and long-term appreciation value.

Book a Site Visit

We’re here to answer your questions and guide you home

Make an Appointment arrow

Need Help Choosing the Right Project?

Just message us — we’ll guide you.